kitchen...
i think the people in the kitchen department at ikea might hate us. or see us coming, and think... them again?? on every single trip over the last few months, we've been pestering them about the new cabinets they are getting in this year, with the answer "we dont know that". well, persistence paid off. we found out they are going to be getting the cabinet door "sofielund" in mid-august. great news!! i had accidentally stumbled across this door style a month ago online, but didn't realize i was looking at an australian/asian catalog. (i was a little tired at the moment). i was so excited, sent links to ian, then realized... OOPS. this isn't in the US!! but now it is!! here's a pic from that catalog:

we'll be pairing these with a dark countertop and silver/glass front cabinets, stainless appliances, brushed hardware, and a concrete floor. still undecided on the ceiling... drywall, wood planks? this is where our kitchen plans are at the moment:


a little explaining might be needed :) ... the 2 black pantries to the left will be painted w/chalkboard paint for lists and doodles. (i hate the chalk mess, so we intend to use chalk markers). the horizontal glass front cabinets will have a hanging wooden shelf below (where i had to sub in metal shelves), with the range hood in between. above those glass front cabinets, we're thinking of "resting" a thicker wood shelf on top of those, sticking out a little deeper. the pantry to the right of the fridge is for cleaning supplies, swiffers, etc. the island is a little off on placement right now, and the "table part" should be a little bit longer (long enough for 2 stools on each side). that will be where we drink coffee, make cookies, and color. and, last but not least, the under counter wine fridge will be used for fancy beers :)
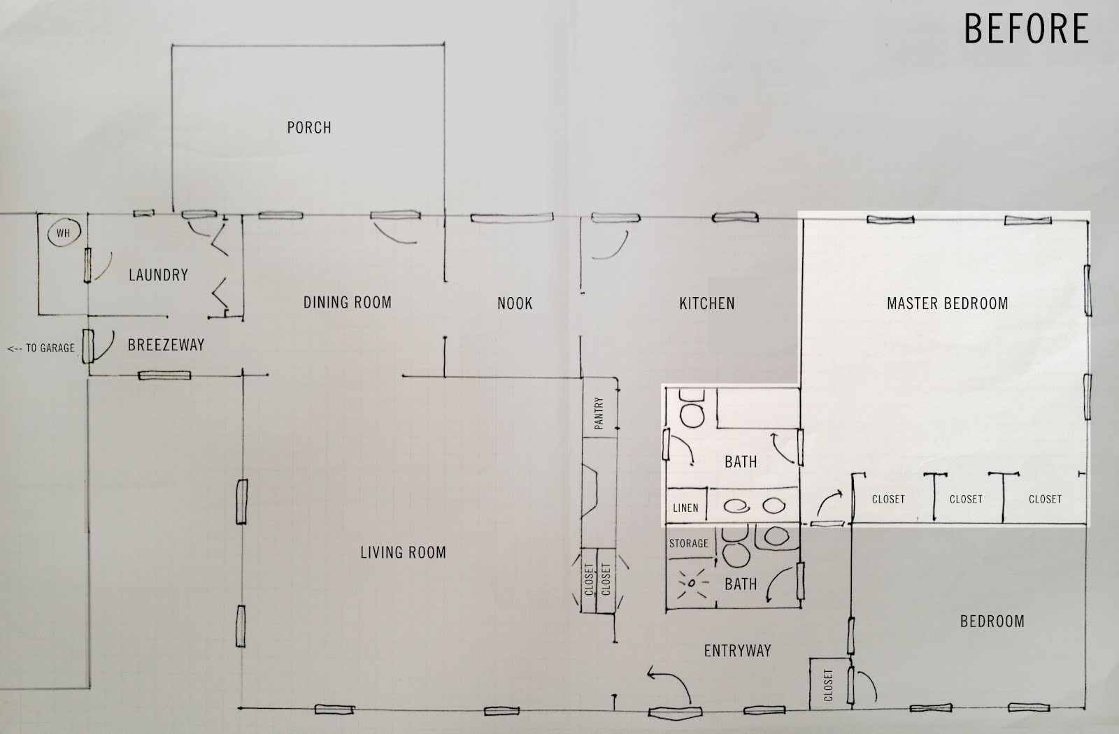
master bedroom...
this has been my biggest struggle. the master bedroom was roughly 18 x 17. pretty big, almost TOO big to be useable. we knew we wanted a sliding glass door/wall of windows/lots of light coming in from the back yard. we also knew we wanted to demo the closets, due to small doors and poor design. i would also like to vault the ceiling and add skylights, but that is still up for discussion :). the master bath is 8x8, which was also proving to be an awkward space... every design i came up with seemed like wasted space in the middle.
so, last night, ian had a brilliant idea. what if we turned the bathroom into a walk in closet, and build a master bath where the closets were? after a little sketching, i think this is proving to be the best use of our space.
before:

proposed "after":

both the bathroom and closet will have sliding pocket doors. the closet will have built-in "wardrobes" on each side (similar to our current closet). back wall will have mirrors and knobs to hang things up.
the bathroom...well... maybe its a little excessive? what we have here is an open shower, separated by a glass partition. there is also a soaking tub :) this may be a clawfoot tub, but i'm not sure if we'll be able to find one (or if that even goes with the style of the house). everything else is pretty standard... double sink, toilet, closet, etc. i have the shower wall built out a few inches to incorporate a built-in shelf for shampoo, etc. we also have a warming towel rack to hang on the far side of the shower.
the bedroom itself still feels pretty roomy with a queen sized bed in it. we have room for our 2 dressers, dog bed, and possibly a chest at the foot of the bed if we ever want one. probably have room for a cozy chair too! on the wall dividing the bedroom/bathroom, we're thinking of installing frosted transom windows right below the ceiling. we still need to decide what we're doing for the wall of windows/doors (expansive sliding glass doors are ridiculously expensive), but i think we're in a good starting place.
any thoughts/comments on our grand plans?? :)
No comments:
Post a Comment